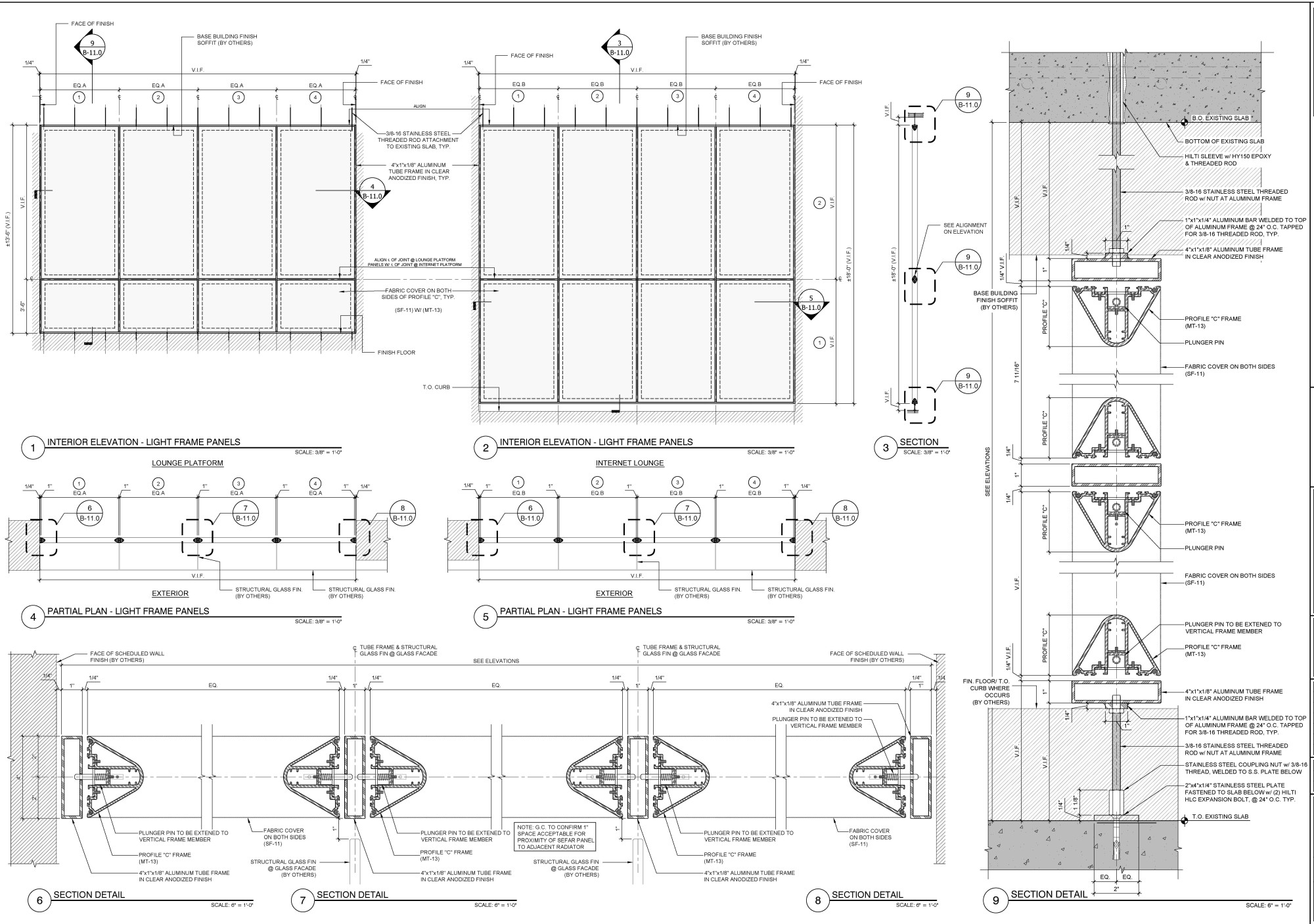
SCREEN METAL PANEL WALL