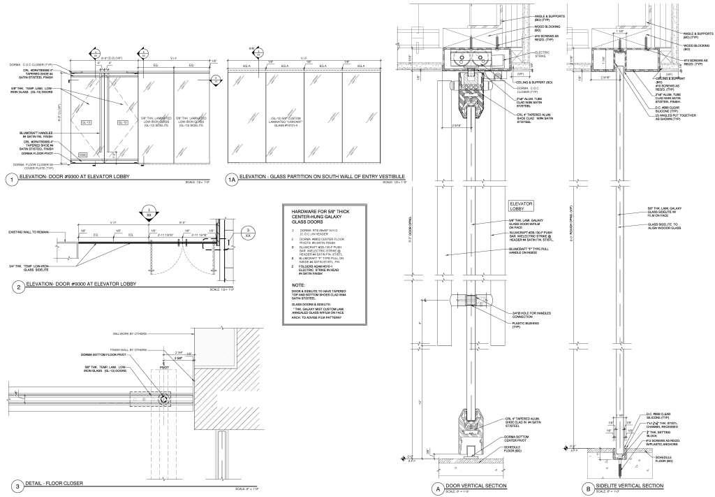
GLASS OFFICE FRONT