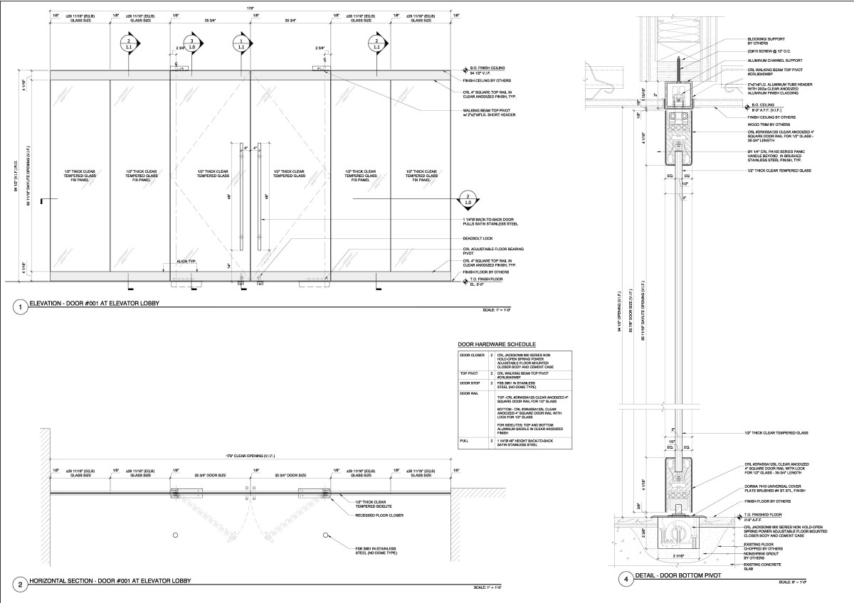
ENTRY DOOR