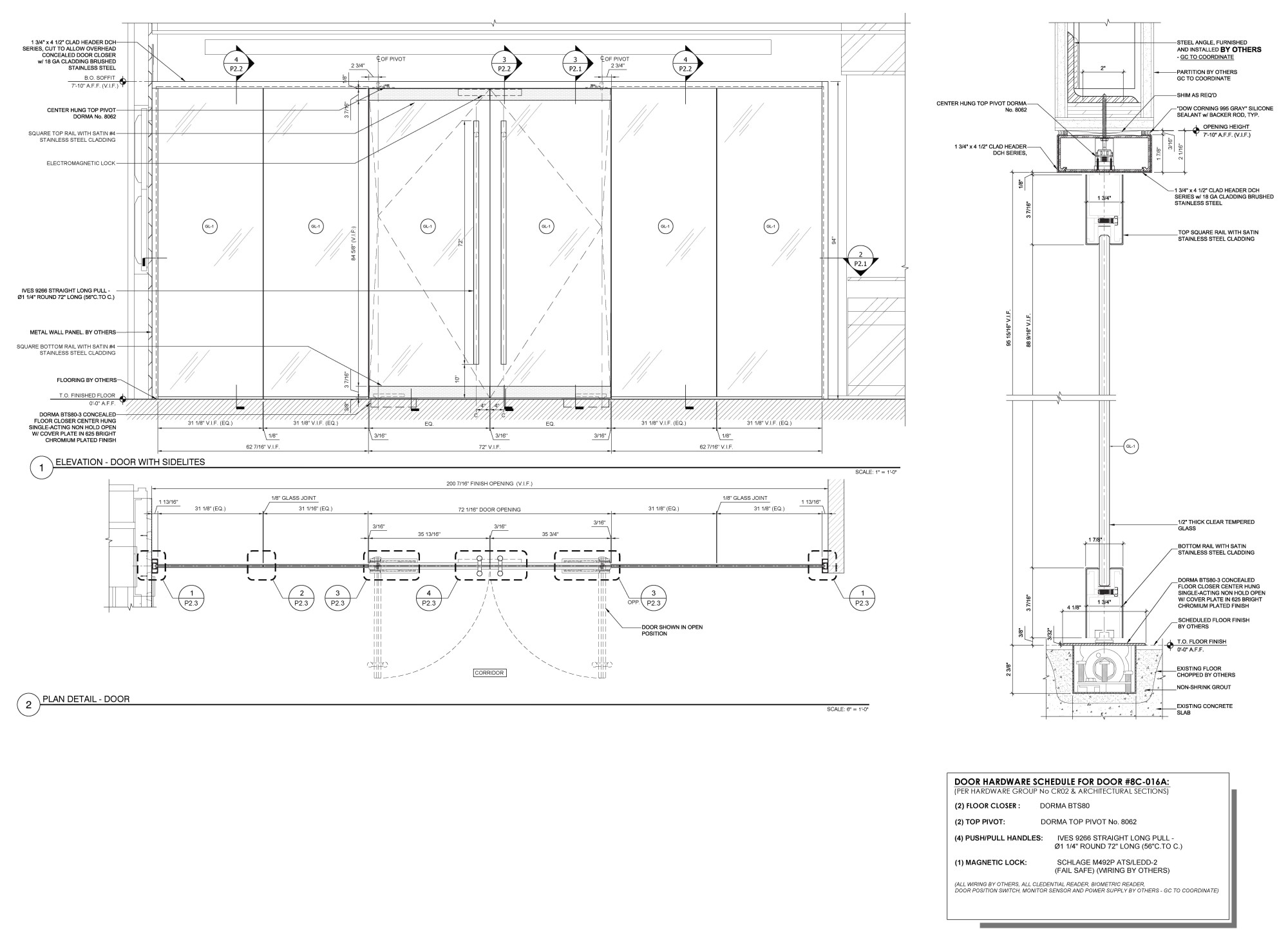
DOOR WITH SIDELITES