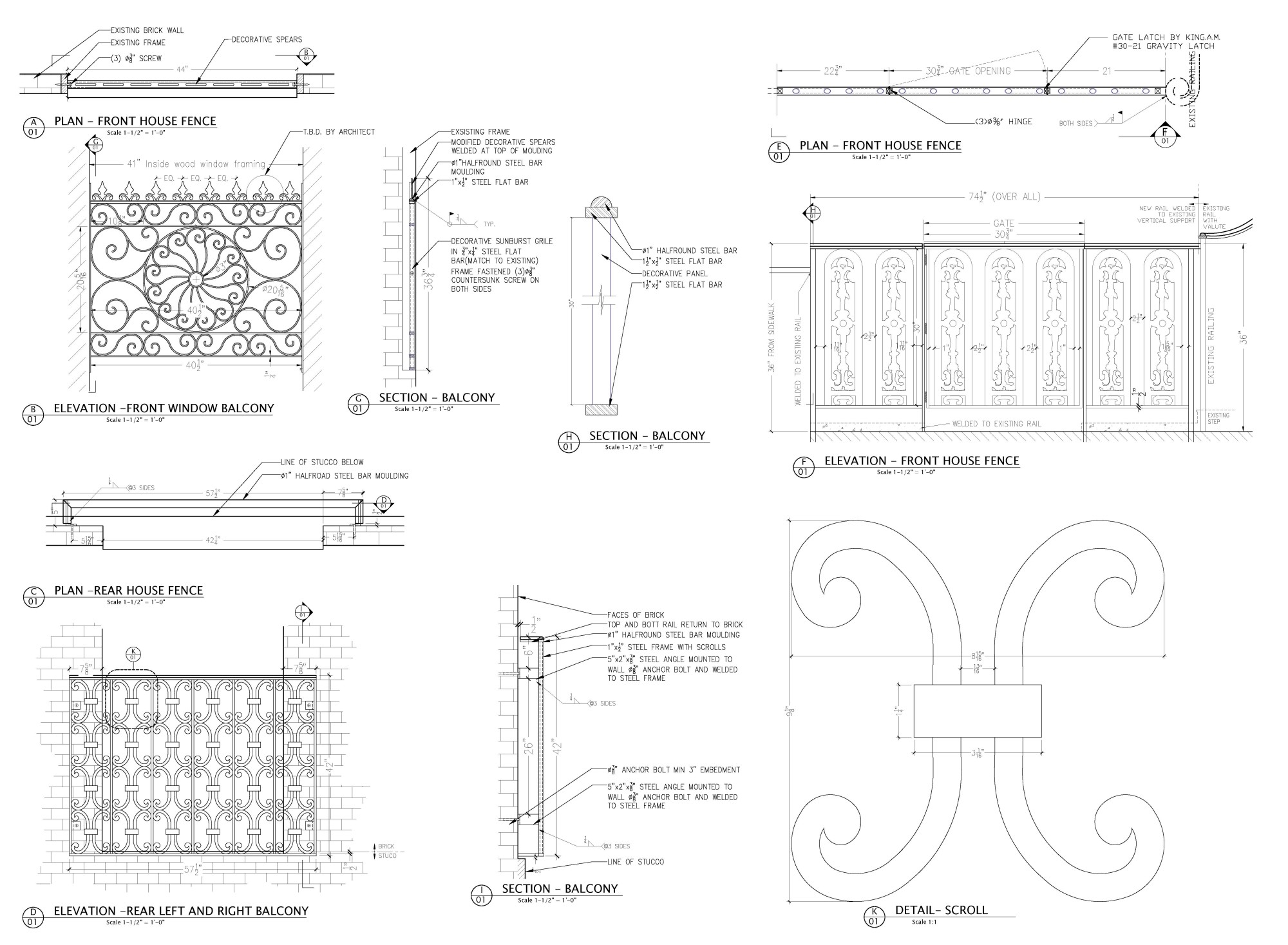
ORNAMENTAL STEEL GUARDRAIL