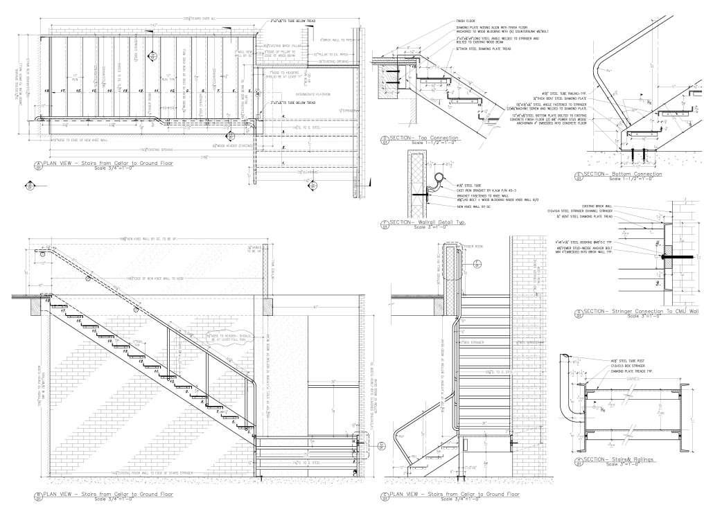
METAL ACCESS STAIRS