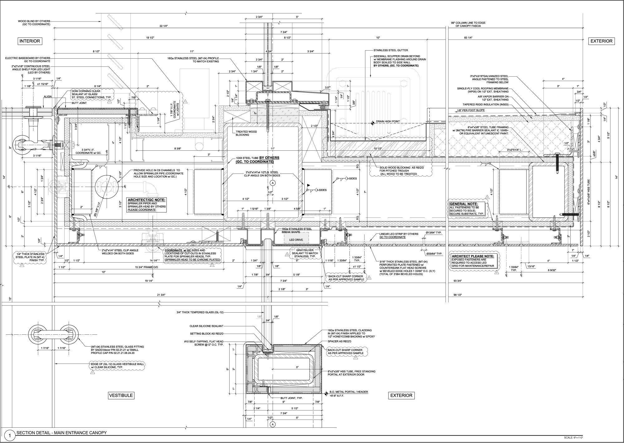
ENTRANCE + CANOPY 2